Buenas chic@s... Despues de muchisimo tiempo invertido, dinero y de todo.. tiro la toalla con el swap al corsa B...
En la vida pensé que esta basura me iba a dar tantos comederos de cabeza.. eso de quitar y poner ajustando solo unas poquitas cosas no es asi.. e tenido problemas desde el primer dia hasta el ultimo...
Y a dia de hoy estoy tan extremadamente perdido que estoy ya cayendo enfermo... Nunca pensé que un maldito coche me iba a dejar asi la cabeza...
Cuando me meti en la aventura no pensaba esto de verdad... Fijaros hasta donde llega esto q voy a tirar 3200€ invertidos a la basura solo por quitarme el problema de la cabeza... No es normal esto...
Un C18XE de mierda que no hay manera de que dure la chispa mas de 2 segundos !!!
E revisado el cableado 3837728272627272726272 veces
Le e metido corriente directa a todo,
E invertido mas de 200h al sistema electrico
E mandado la centralita a quitar el inmovilizador
E cambiado 4 bobinas
Cables de bujias 2 juegos
Bujias 2 juegos
Sensor arbol de levas 3 veces cambiado nuevoss
Sensor cigueñal 3 veces cambiados nuevoss
Picado 2 nuevos
Sacar y montar distribución
Comprar otra centralita y llevarla a quitar inmovilizador otra vez
El rele de inyección 4 veces cambiado nuevo
Que mas **** hacer... Mas que llorar tirarme de los pelos y no dormir... W consegudo hacer arrancar cosas prácticamente imposibles.. y viene un maldito motor y no consigo...
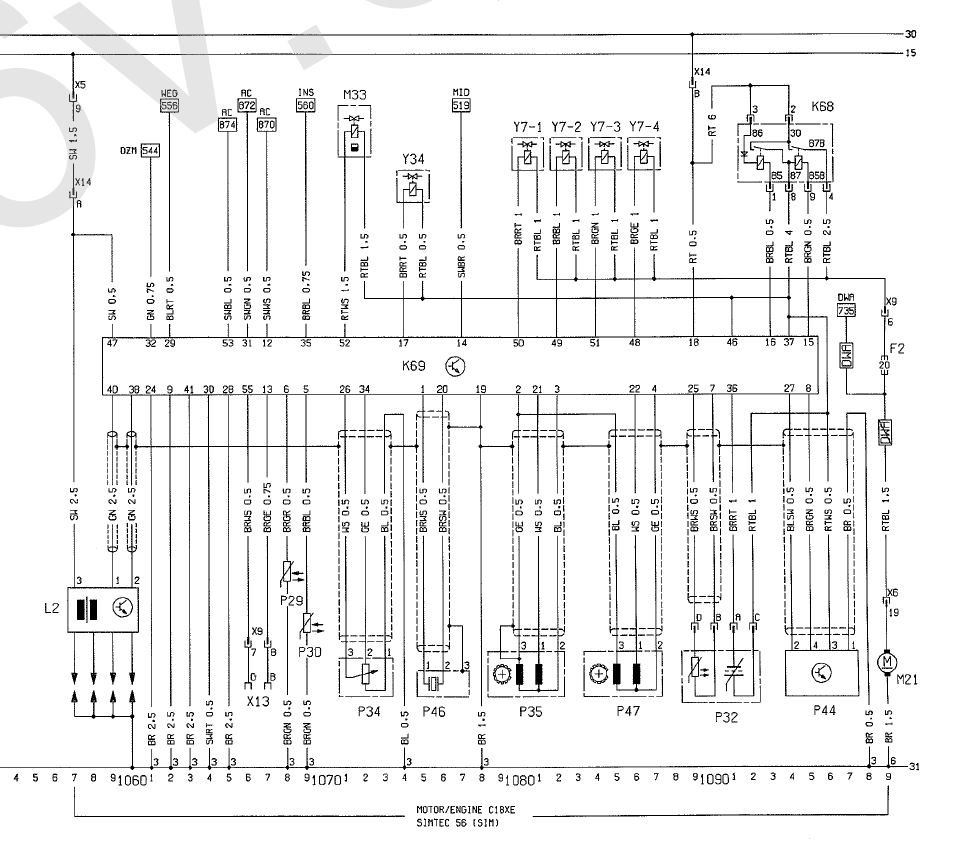
Esquemas en mano y nada !!!!
E ofrecido 1000€ a quien consiga que de chispa continuamente.. y nada...
La semana que viene se va a la chatarra el puto coche.. con suspensiones nuevas barras sparco y todo echo... Que le den por culo... No puedo más...
La primera vez en mi vida que me meto en un proyecto opel.. en mi vida vuelvo a meterme en algo que tenga que ver con esto...





Citar

